
10月21日 2020年
项目位于金湾星湾路169号,目前在售南区建面约106-143㎡花园洋房,整体均价约18000元/㎡,详情请拨400电话咨询销售中心。项目近享国际商务中心、市民艺术中心、产业服务中心、公共文化中心、奥体中心、青少年妇女儿童活动中心等“六大中心”市政规划,以及华发西部商都、...更多>>
珠海星河传奇花园
航空新城
普通住宅 , 花园洋房
精装修
1
36.35%
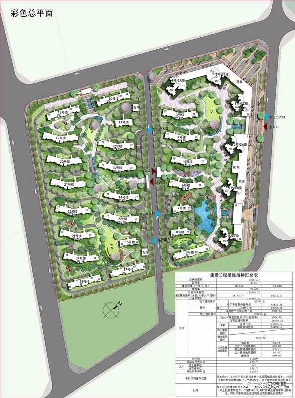
133930.7平米
18000元/m²
深圳星河智善生活股份有限公司
深圳星河地产首度布局珠海落子金湾,以深圳星河传奇的精良品质,升级打造全国第二座星河传奇。1.0超低容积率,规划有高层、洋房、商业,为城市精英筑造从容生活主场。 项目近享国际商务中心、市民艺术中心、产业服务中心、公共文化中心、奥体中心、青少年妇女儿童活动中心等“六大中心”市政规划,以及华发西部商都、航空城小学、金湾一中、金山公园、金湾高尔夫等质优配套。3公里范围内规划2所三级甲等医院,完全满足区内的城市生活需求。